Inspirez-vous de mes projets et réalisations sur mesure

Chaque projet que je mène est une réponse concrète à un besoin unique. Dans cette galerie, je vous présente des exemples de maisons rénovées, d'espaces professionnels transformés et d'agencements astucieux. Que vous soyez un particulier ou un professionnel, ces réalisations reflètent mon approche personnalisée et ma capacité à sublimer chaque espace selon vos attentes.

Transformation d’un appartement à louer avec vue sur le Vieux-Port à Marseille

1 / 6
Transformation d’un appartement à louer avec vue sur le Vieux-Port à Marseille
Transformation d’un appartement à louer avec vue sur le Vieux-Port à Marseille
Transformation d’un appartement à louer avec vue sur le Vieux-Port à Marseille
Transformation d’un appartement à louer avec vue sur le Vieux-Port à Marseille
Transformation d’un appartement à louer avec vue sur le Vieux-Port à Marseille
Transformation d’un appartement à louer avec vue sur le Vieux-Port à Marseille

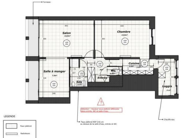
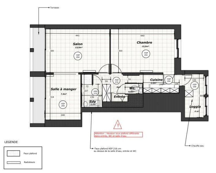
M. M. souhaitait donner une nouvelle vie à son appartement récemment acquis à Marseille. L’objectif : créer un logement moderne, fonctionnel et attractif pour la location, en tirant parti de sa vue exceptionnelle sur le Vieux-Port.


Aménagement repensé pour maximiser l’espace et la lumière

Pour optimiser la circulation et la luminosité, nous avons réorganisé les pièces principales. La cuisine ouverte sur le séjour offre désormais un grand espace de vie convivial, idéal pour profiter pleinement de la vue et faciliter le quotidien des locataires.


Verrière design pour modernité et clarté

Une verrière intérieure a été intégrée afin d’apporter un style contemporain et de laisser passer la lumière naturelle dans tout l’appartement. Elle permet de délimiter les espaces sans cloisonner, créant une atmosphère lumineuse et élégante.


Décoration méditerranéenne pour une ambiance chaleureuse

Les tons bleus, inspirés de la mer Méditerranée, associés à des éléments en bois, apportent chaleur et confort à l’espace. Cette palette et ces matériaux créent un intérieur accueillant et harmonieux, idéal pour séduire les futurs locataires.


Appartement prêt à être loué

Après cette rénovation complète, l’appartement est optimisé et fonctionnel, prêt à accueillir ses locataires. Chaque détail a été pensé pour allier esthétique, praticité et confort, offrant un logement attractif et lumineux dans le centre de Marseille.