Inspirez-vous de mes projets et réalisations sur mesure

Chaque projet que je mène est une réponse concrète à un besoin unique. Dans cette galerie, je vous présente des exemples de maisons rénovées, d'espaces professionnels transformés et d'agencements astucieux. Que vous soyez un particulier ou un professionnel, ces réalisations reflètent mon approche personnalisée et ma capacité à sublimer chaque espace selon vos attentes.

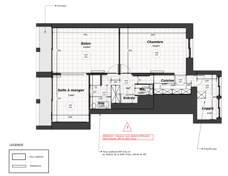
Un projet d’aménagement intérieur sur-mesure

1 / 3
Un projet d’aménagement intérieur sur-mesure
Un projet d’aménagement intérieur sur-mesure
Un projet d’aménagement intérieur sur-mesure

Dans le cadre de ce projet de décoration intérieure, l’objectif était de repenser entièrement l’espace de vie pour créer un environnement à la fois harmonieux, fonctionnel et fidèle à la personnalité des occupants. Chaque étape a été pensée pour offrir une réponse sur-mesure, alliant esthétique, confort et optimisation de l’agencement.

Une approche personnalisée pour un intérieur unique

Dès les premiers échanges, une attention particulière a été portée à la compréhension des besoins, des envies et du mode de vie des clients. Cette phase essentielle a permis de construire un concept d’aménagement intérieur cohérent, en accord avec leur vision et leurs priorités.

L’espace a été retravaillé pour améliorer la circulation, maximiser la lumière naturelle et structurer les volumes de façon fluide et élégante. Le choix des matériaux, des textures et des coloris a été guidé par une volonté d’équilibre entre modernité et chaleur.

Modélisation 3D : Concevoir et se projeter

Pour permettre aux clients de mieux se projeter dans leur futur intérieur, des plans en 3D réalistes ont été réalisés. Cet outil de conception permet d’anticiper chaque détail – de l’agencement à la décoration – et d’ajuster les choix esthétiques avant le lancement des travaux.

La visualisation 3D a également favorisé une prise de décision rapide et éclairée, tout en assurant une cohérence globale du projet.

Une estimation budgétaire précise et transparente

Une estimation complète des coûts a été fournie en amont, afin de garantir une parfaite maîtrise financière du projet. Grâce à un réseau de professionnels qualifiés, chaque poste a été étudié pour répondre aux exigences de qualité tout en respectant le budget fixé.

Ce travail en synergie avec les artisans partenaires permet d’assurer un déroulement fluide, sans surprise, du premier croquis jusqu’à la livraison finale.


Une réalisation à l’image des clients

Ce projet illustre pleinement la démarche que je propose : créer des espaces sur-mesure, pensés pour durer, où chaque élément a sa place et son intention. Qu’il s’agisse de repenser une pièce, de redonner du caractère à un lieu ou de valoriser les volumes existants, chaque intervention repose sur une écoute active, une vision créative et une méthodologie rigoureuse.


Vous avez un projet d’aménagement ou de décoration intérieure ?

Que vous envisagiez de transformer une pièce de vie, réorganiser un espace ou relooker votre intérieur, je vous accompagne avec une solution complète : de la conception 3D à la sélection des matériaux, jusqu’à l'estimation du budget.

Discutons ensemble de votre projet et donnons vie à un intérieur qui vous ressemble.